56 mq
1
1
Appartamento ristrutturato in borgo toscano vicino a Pienza e Montepulciano
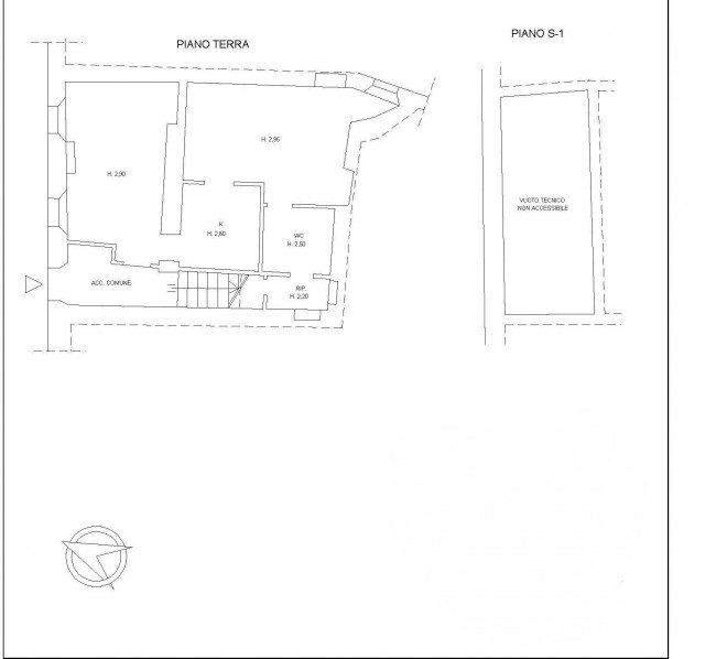
Nel cuore di un piccolo villaggio toscano, a pochi chilometri da Pienza e Montepulciano, proponiamo in Vendita un delizioso Appartamento al piano terra di 54 mq, recentemente ristrutturato e pronto da abitare.
L'abitazione combina il fascino dei dettagli storici con il comfort moderno: soffitti antichi sabbiati, porte e persiane originali restaurate, pavimenti e impianti completamente nuovi. Il soggiorno è reso accogliente dal caminetto con stufa a legna Jotul, ideale per creare un'atmosfera calda e intima.
Gli ambienti sono luminosi e funzionali: soggiorno con cucina, camera matrimoniale, bagno, lavanderia/ripostiglio e un'ampia cantina. L'Appartamento è dotato di impianti elettrici e idraulici nuovi, aria condizionata e pompe di calore Daikin, predisposizione per pannelli fotovoltaici con accumulo.
Gli spazi esterni sono curati e scenografici, con vasi in terracotta, angoli verdi e una piacevole zona relax, perfetti per vivere lo stile di vita toscano all'aperto.
Un rifugio ideale per chi cerca una casa pronta, arredata, con il giusto equilibrio tra tradizione toscana e comfort contemporaneo, in un contesto tranquillo ma vicino ai borghi più rinomati della Val d'Orcia.

56 mq
1
1