Vedi più foto
Cod. A785
€ 196.000
Classe energetica: G EP glnr: 209.89 kwh/㎡

Villette a schiera in Vendita a Torrita di Siena

Montefollonico - via della madonnina
155 mq
3
2
Descrizione

Villetta a Schiera in Vendita a Montefollonico: Perfetta per una Giovane Famiglia
Montefollonico, un pittoresco borgo toscano immerso tra le colline della Val d'Orcia e della Val di Chiana, rappresenta la cornice ideale per chi desidera crescere i propri figli in un ambiente sano, tranquillo e a misura di famiglia. Lontano dal caos cittadino, Montefollonico offre una qualità della vita straordinaria, con servizi essenziali come l'asilo, attività locali e una comunità accogliente e calorosa.
La Proprietà
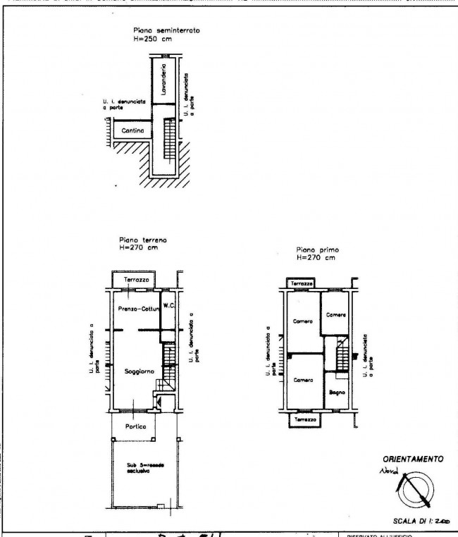
Questa villetta a schiera, costruita tra il 2000 e il 2001, si presenta in ottime condizioni ed è pronta per accogliere una giovane famiglia che cerca spazi confortevoli e funzionali.
Caratteristiche Principali:

  • Giardino e Porticato: La casa è dotata di un giardino sul fronte, perfetto per i momenti all'aria aperta, e di un porticato ideale per cene estive o per rilassarsi nelle fresche serate toscane.
  • Ampio Salone e Cucina Abitabile: Il piano terra accoglie un luminoso salone che si apre su una cucina abitabile con balcone, offrendo spazi ideali per la vita quotidiana.
  • Zona Notte: Al piano superiore, la zona notte comprende tre camere da letto, due delle quali con balcone, e un bagno con vasca e finestra.
  • Piano Seminterrato: Una zona tecnica con lavanderia finestrata e un comodo garage completano la proprietà, garantendo praticità e funzionalità.
Finiture e Servizi
Le rifiniture della casa sono di ottima qualità e si presentano in ottimo stato, pronte per essere personalizzate in base alle esigenze della tua famiglia. Le utenze (luce, acquedotto e riscaldamento) sono tutte presenti e facilmente riattivabili.
Perché Montefollonico?
Montefollonico è il luogo perfetto per chi sogna una vita serena, circondato da bellezze naturali e da un ambiente autenticamente toscano. Qui potrai crescere i tuoi figli in un contesto sicuro, immerso nella natura e ricco di tradizioni. Il paese offre la giusta combinazione tra tranquillità e comodità, con i principali servizi a portata di mano.
Non lasciarti sfuggire questa opportunità unica!

Contattaci oggi stesso per prenotare una visita e scoprire come questa villetta può diventare la casa dei tuoi sogni.

mostra di piùmostra di meno
Caratteristiche
Scopri le caratteristiche di questo immobile
Totale mq: 155 mq
Camere: 3
Bagni: 2
Locali: 7
Stato conservazione: Ottimo
Piano: Su due livelli
Riscaldamento: Autonomo
Appartamenti Totali: 12
Anno di costruzione: 2001
Balconi: Presente
Giardino: Privato
Cucina: Abitabile
Box: Singolo
Posizione: Periferica
Ripostiglio
Camino
Impianto Telefonico
Sanitari sospesi
Doccia
Lavastoviglie
Lavatrice
Lavastoviglie
Nelle vicinanze
Servizi e infrastrutture della zona
Palestre
Centri Benessere
Campi da Calcio
Complessi Sportivi
Campi da Tennis
Piste Ciclabili
Parchi Giochi
Stazione Ferroviaria
Trasporti Pubblici
Asilo
Scuole Elementari
Scuole Medie
Scuole Superiori
Bar
Uffici postali
Centri commerciali
Uffici comunali
Teatro
Ristorante
Bancomat
Supermercato
Farmacia
Piscina pubblica
Ubicazione immobile
Video immobile
Virtual tour immobile
Papalini Monica
Papalini Monica
Agente

P.IVA: 01048100521
Num. REA: 116440

soleditoscana@gmail.com
+39 0577669496
+39 3487033529
Contattami


Alcuni immobili che potrebbero interessarti

Ultimo aggiornamento 15/09/2025
Villette a schiera in Vendita
Torrita di Siena - via della madonnina
Montefollonico
€ 196.000
155 mq
3
2
Menu
Ricerca
Chiamaci
Scrivici
Whatsapp