133 sq.m
2
3
Montefollonico - historic center - a few steps from Pienza and Montepulciano unique opportunity to buy a recently renovated house with its own private garden.
HAVING YOUR OWN PRIVATE GARDEN IN THE HISTORICAL CENTER IS PRICELESS.
The house, located in the historic center, offers the opportunity to live among the beauty of the past but with all the comforts we need today.
The design, colors and location of this house make it perfect for those who live a life made up of alternative jobs, evenings with friends and freshness towards the finer things in life, all those who, like you, do not like conventions and they want a place to love day after day.
This is why this Villa in the historic center guarantees you to enjoy a relaxing corner in the beautiful medieval village of Montefollonico, and at the same time to be close to all the major arteries of
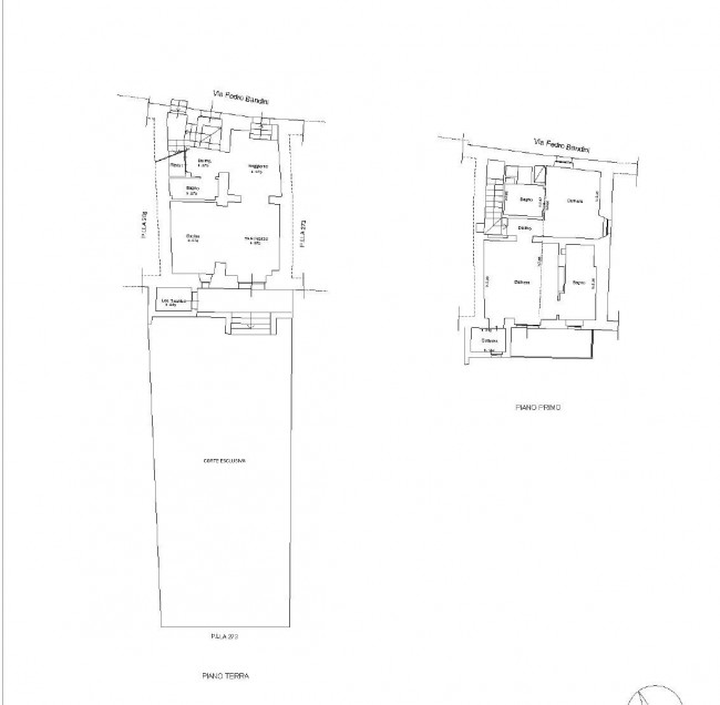
The house is spread over two levels connected by a grit staircase, entering from one of the characteristic streets of the town you enter the ground floor which consists of a single large bright room with open kitchen, living room and dining area divided by the characteristic Tuscan arches, the ground floor is also equipped with a bathroom-laundry room.
The French window of the living room leads into the sunny private and fenced garden, equipped with lighting and water point, a small area of the garden with a beautiful paving is intended as an outdoor lounge. Imagine it with a pergola covering…
Going up the stairs we arrive at the night floor with two large double bedrooms with attached private bathrooms for both, the master bedroom has a panoramic terrace and a walk-in closet.
The renovation was carried out with care and love by the owners choosing materials and furnishings of great value.
Small but full of love, this is how the perfect home should be. Just like this one, which in its intimacy will be able to welcome your greatest dreams.
USE AND POTENTIALITY
This house is also perfect as a second home, because being in a central and easily accessible place it will allow you to fully enjoy it, or to make an income by renting it for certain periods of the year.
SERVICES
electricity, mains water, natural gas underfloor heating.
In the historic center we find bars, restaurants, ATMs, pharmacy, theater
DISTANCES
Siena 65km, Montepulciano 9km, Pienza 11km, Montalcino 32km, A1 Val di Chiana motorway 15km,
Airports: Perugia 68 km, Pisa 192 km, Florence 111 km, Rome 197 km

133 sq.m
2
3