197 mq
3
3
Villa indipendente con ampio parco privato, porticato e finiture di pregio Sinalunga
A pochi minuti dal centro di Sinalunga, proponiamo in Vendita una Villa indipendente di recente costruzione (circa 14 anni), immersa in un parco privato di circa 3.000 mq completamente recintati, con oliveto e ampi spazi esterni ideali per famiglie, animali domestici e momenti di relax.
La proprietà si sviluppa su due livelli fuori terra oltre a un comodo piano interrato ed è perfetta per chi cerca privacy, sicurezza, efficienza energetica e spazi vivibili in ogni stagione.
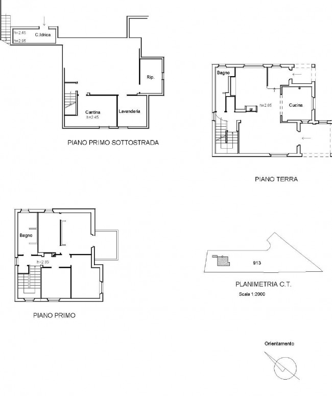
Composizione:
· Piano terra: ingresso su ampio porticato, soggiorno con camino, cucina abitabile, zona pranzo con accesso al portico coperto, bagno con doccia e finestra, grande ripostiglio.
· Primo piano: due camere singole spaziose, bagno con vasca e finestra, camera padronale con cabina armadio doppio accesso e terrazzo panoramico perfetto per la colazione all'aperto.
· Piano interrato: garage doppio, lavanderia, locale tecnico, ripostiglio, bagno.
Caratteristiche principali:
· Parco privato recintato di 3.000 mq
· 22 olivi e zona lastricata per barbecue
· Riscaldamento a metano + pannello solare termico per acqua calda
· Impianto di allarme
· Irrigazione automatica con deposito acqua
· Doppio isolamento tetto (coppi artigianali + cappotto da 10 cm)
· Struttura antisismica
· Porta blindata, citofono, cancello elettrico
Ideale per:
✔️ Famiglie con bambini
✔️ Chi desidera vivere in tranquillità senza rinunciare alla comodità
✔️ Chi cerca una Villa efficiente, sicura e immersa nel verde
Contattaci ora per maggiori informazioni e per organizzare una visita: questa Villa può essere la tua prossima casa in Toscana.

197 mq
3
3